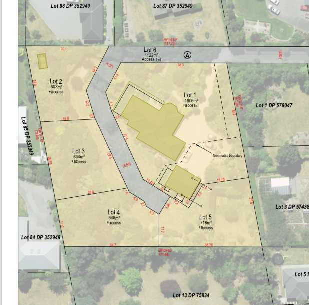
Large Secluded Sections in Rolleston

755 East Maddisons Road, Rolleston 7614

SOLD

This property has been sold.

Listing Reference #3679 . Listed: 15 Oct 2024

Property Specs

  • TypeSection
  • TitleFreehold

Seller's Description

This property has been sold and the seller's description has been hidden.

Sell your property on Listed.co.nz

Downloads for 755 East Maddisons Road, Rolleston

Downloads for this property are no longer available as the property has been sold.

Search other properties for sale in the Canterbury Region



You might also like

Beautiful 2.2Ha Hilltop Utopia...
Waipu
Waipu Caves Estate Drive
Character & Lifestyle in Centr...
Cromwell
Luggate-Cromwell Road

Search Again

Enter a town, city, region or postcode into the search box and we'll show properties in and around that area.